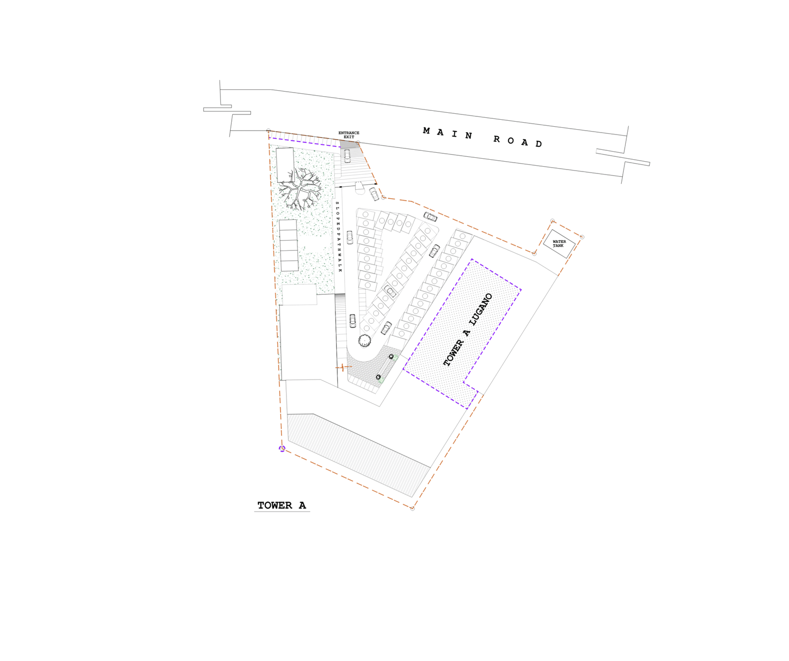
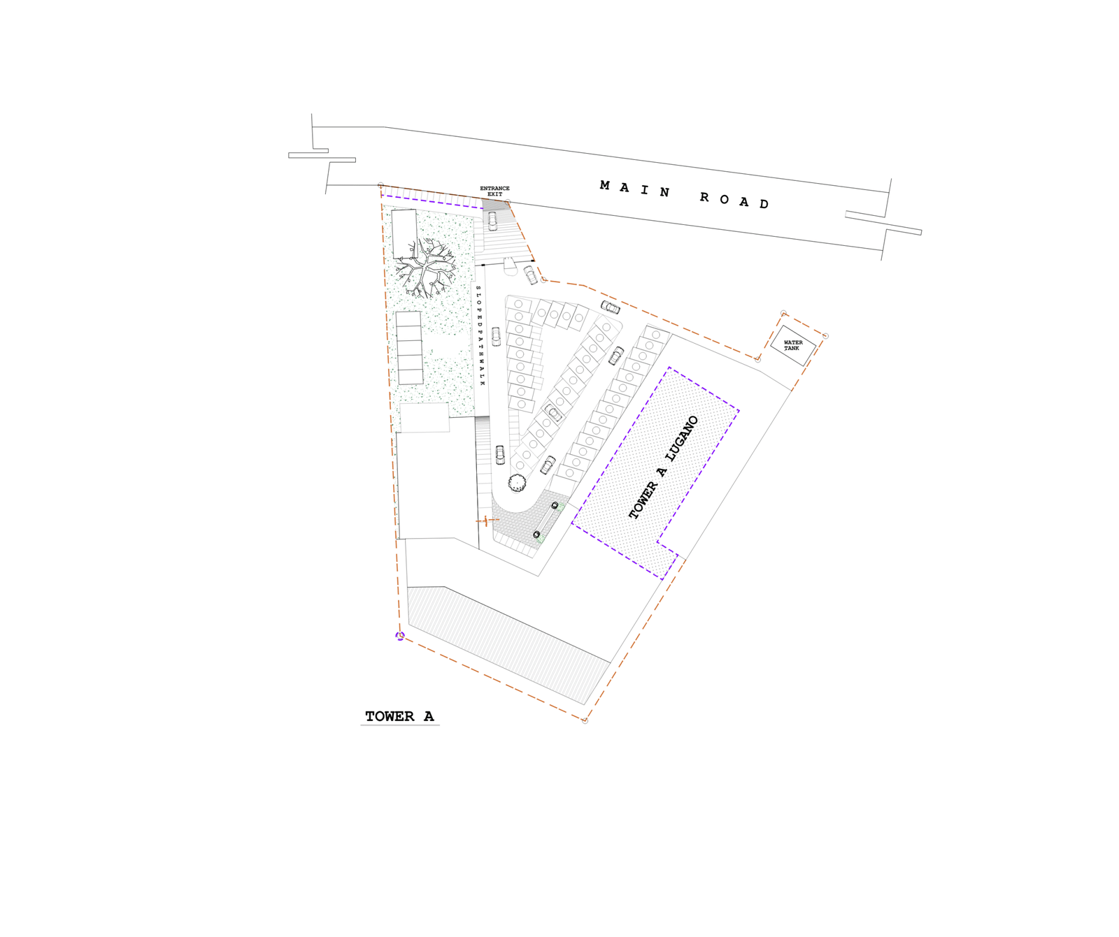
PROJEKTPLAN

En detaljeret forhåndsvisning af vores arkitektoniske tegninger og designkoncepter.

GRUNDUDVIKLING

TÅRN A

TÅRN B